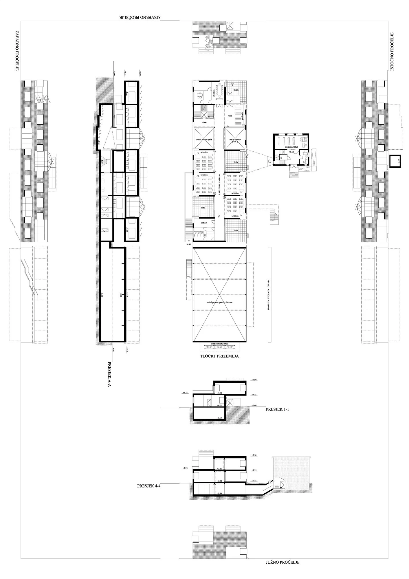
osnovna škola dunav, vukovar, 2015.
natječaj za rješenje interkulturnog programa osnovne škole dunav u vukovaru - treća nagrada.
projekt je izložen na 53. zagrebačkom salonu arhitekture.
osnovna škola dunav, vukovar, 2015.
natječaj za rješenje interkulturnog programa osnovne škole dunav u vukovaru - treća nagrada.
projekt je izložen na 53. zagrebačkom salonu arhitekture.